Software de desenhos técnicos
Gestão completa de desenhos e sub-desenhos técnicos, garantindo orçamentos precisos e uma produção eficiente
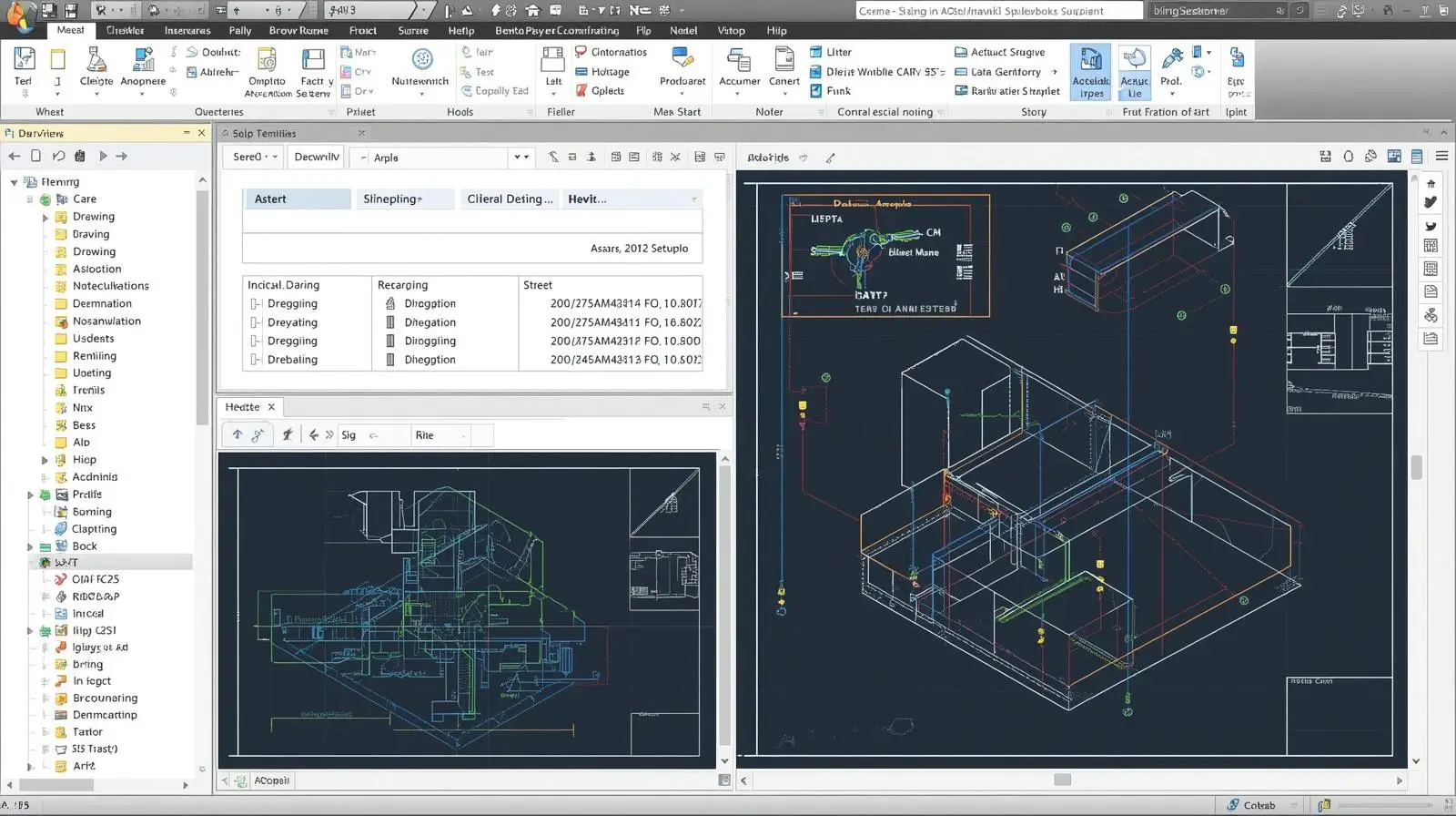
(Software 100% web; Integração com softwares de desenho, conceção e modelação)
Dificuldades em orçar e controlar desvios?
Controle do projeto à execução da produção
Desenhos
dispersos
Custos por componente
desatualizados
Falha na integração
entre software
Fichas técnicas
incompletas
Falha de agrupamento
das soluções
Gestão de desenhos e sub-desenhos
Parametrizável para diferentes projetos e realidades
Gestão de desenhos
Sub-desenhos
Fichas técnicas completas
Gestão técnica com adaptação a diferentes indústrias
O módulo de produção do Sweb adapta-se totalmente à realidade da sua empresa, permitindo gerir qualquer tipo de operação com máxima eficiência.
Software de desenhos técnicos
O Sweb é um software que centraliza a gestão de desenhos e sub-desenhos técnicos, do projeto à produção. A solução integra-se com softwares CAD e sistemas de produção, permitindo importar dados, estruturar fichas técnicas completas e manter custos atualizados.
- Orçamentos mais precisos
- Controlo de custos
- Análise de desvios
Controlo de custos
- Integração com softwares CAD e sistemas de produção
- Importação de dados
- Estrutura de fichas técnicas completas
- Métricas de eficiência e produtividade
Ligação ao CAD
e outros softwares de desenho
Integração com software
de produção
Parametrizável
para qualquer indústria
Implementado em diferentes àreas
Clientes da solução de software







Questões Frequentes
Todas as características das nossas soluções e do trabalho desenvolvido junto dos nossos clientes.
O Sweb substitui o meu software de desenho?
O Sweb complementa os restantes softwares de desenho, através da gestão da informação recebida, controlando custos e fazendo a ligação à produção.
Como funciona a gestão de desenhos?
Um desenho principal pode englobar diferentes sub-desenhos, cada um com a sua ficha técnica e custos associados.
É possível importar dados de outros sistemas?
Sim, o Sweb permite a importação via CSV de desenhos técnicos, características e listas de materiais.
Controlo do projeto à produção
Solicite uma demonstração